Elevation A
Elevation B
Elevation C
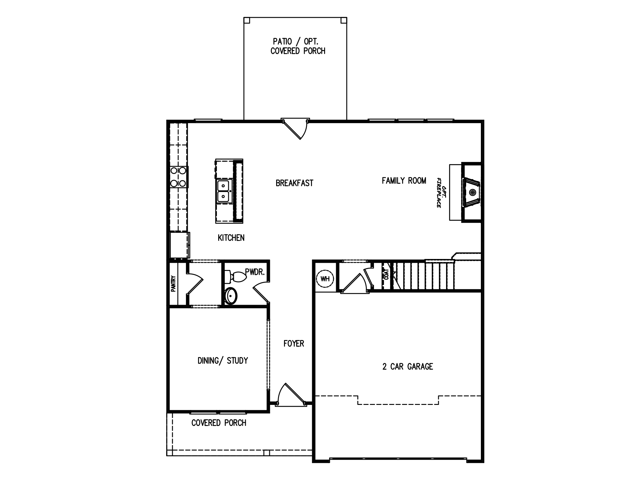
First Floor at Sutton's Landing
Second Floor at Sutton's Landing
Optional Garden Tub at Sutton's Landing
Optional Super Shower at Sutton's Landing
239 Cochin Drive
Statham, GA 30666
Open in Google Maps
Monday - Saturday: 10am - 6pm
Sunday: 1pm - 6pm
From Athens: Take GA-10 Loop West, Follow GA-10 Loop West and GA-316 West to Barber Creek Rd in Barrow County, Turn left onto Barber Creek Rd, Turn right onto Doc McLocklin Rd, Turn left onto Robertson Bridge Rd, Turn right onto Kumbanad Ct, Turn left at Kerala Parkway & the community will be on your right.
From Hwy 78: Head East toward Athens. Continue on Hwy 78 and take a left turn onto Hog Mountain Road. Follow Hog Mountain Road for 3 miles, then turn right onto Robertson Bridge Road. Take a left onto Cochin Drive. At the four-way stop, turn left onto Kerala Pkwy and right onto Titus Lane. The model home will be on your left.