 
                                                                      Elevation A Side Entry Wrap Around Porch
 
                                                                      Elevation B Side Entry Wrap Around Porch
 
                                                                      Elevation C Side Entry Wrap Around Porch
 
                                                                      Elevation D Side Entry Wrap Around Porch
 
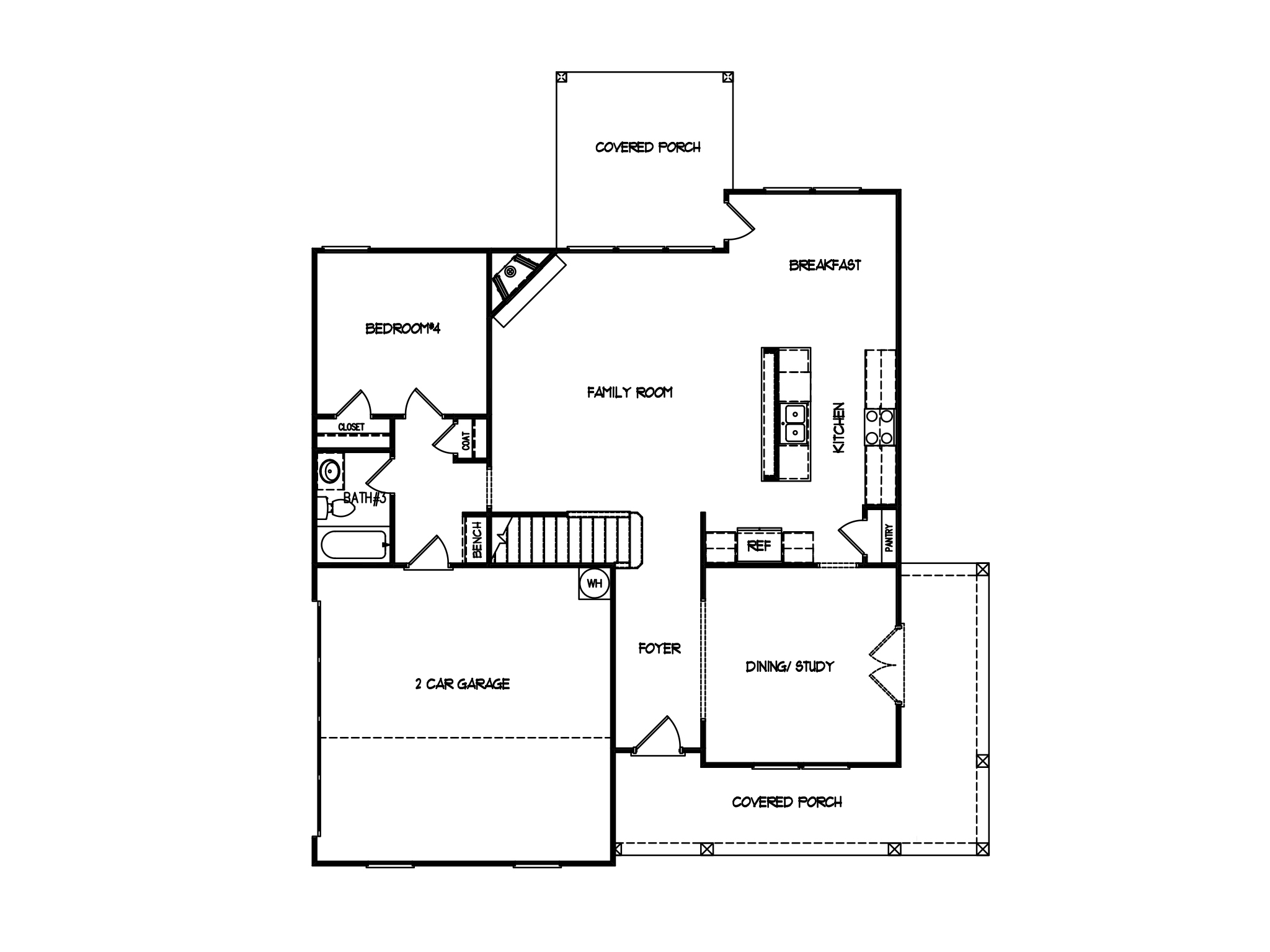
                                                                      First Floor at Magnolia Ridge
 
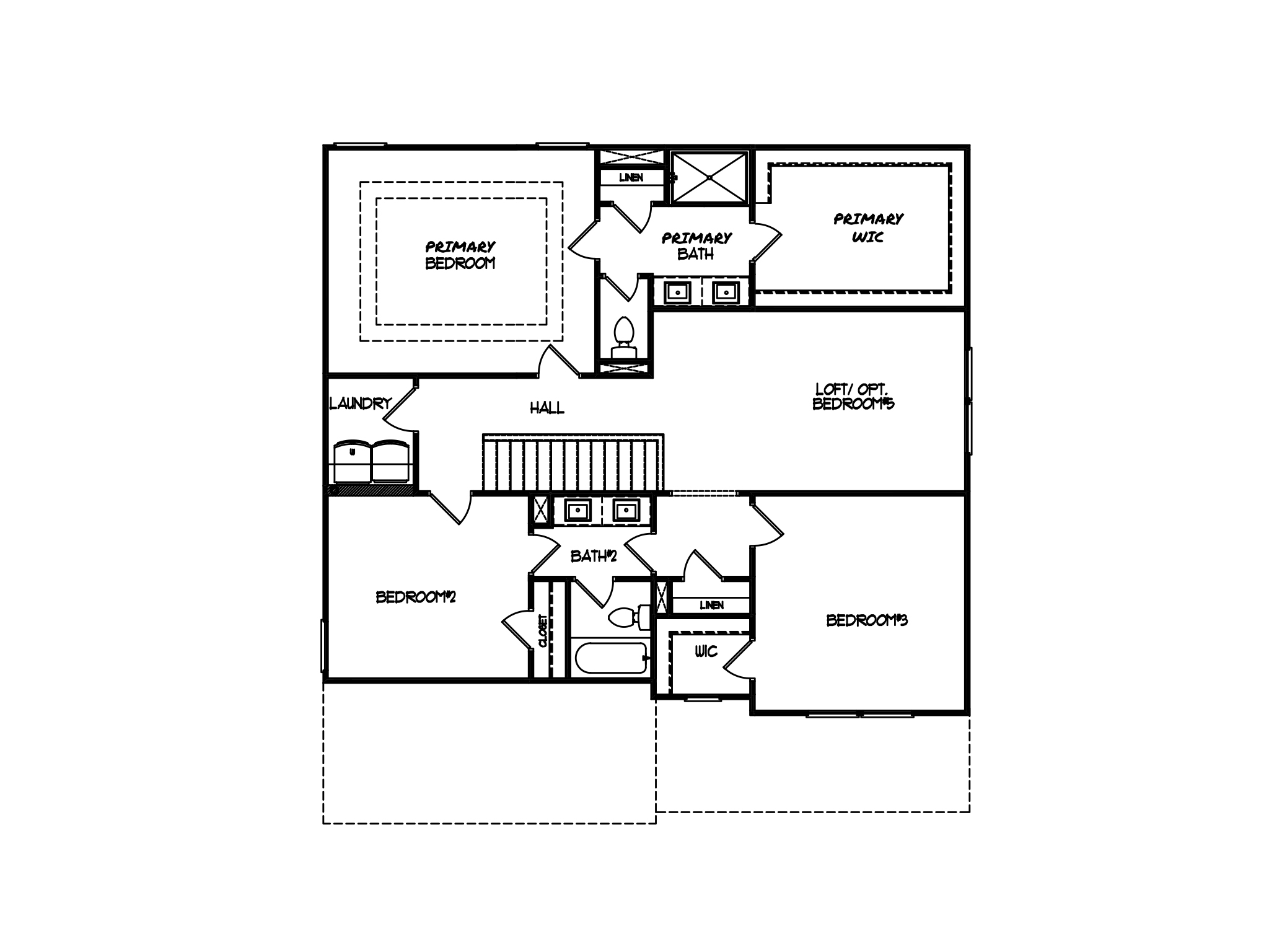
                                                                      Second Floor at Magnolia Ridge
 
                                                                      Optional Bedroom #5 at Magnolia Ridge
 
                                                                      Optional Tub at Magnolia Ridge
                                                                 Gene Bell Rd & Magnolia Ridge 
Monroe, GA 30655                                                                 
                                                                 Open in Google Maps
                                                            
By Appointment Only!
From 78: Head East on 78 for 13 miles, turn right onto GA-83 South, turn right onto Good Hope Road, turn left onto Gene Bell Road, turn left onto Magnolia Ridge & the community is at the corner of Gene Bell Rd & Magnolia Ridge.