Unit 2A
Unit 2B
Unit 2C
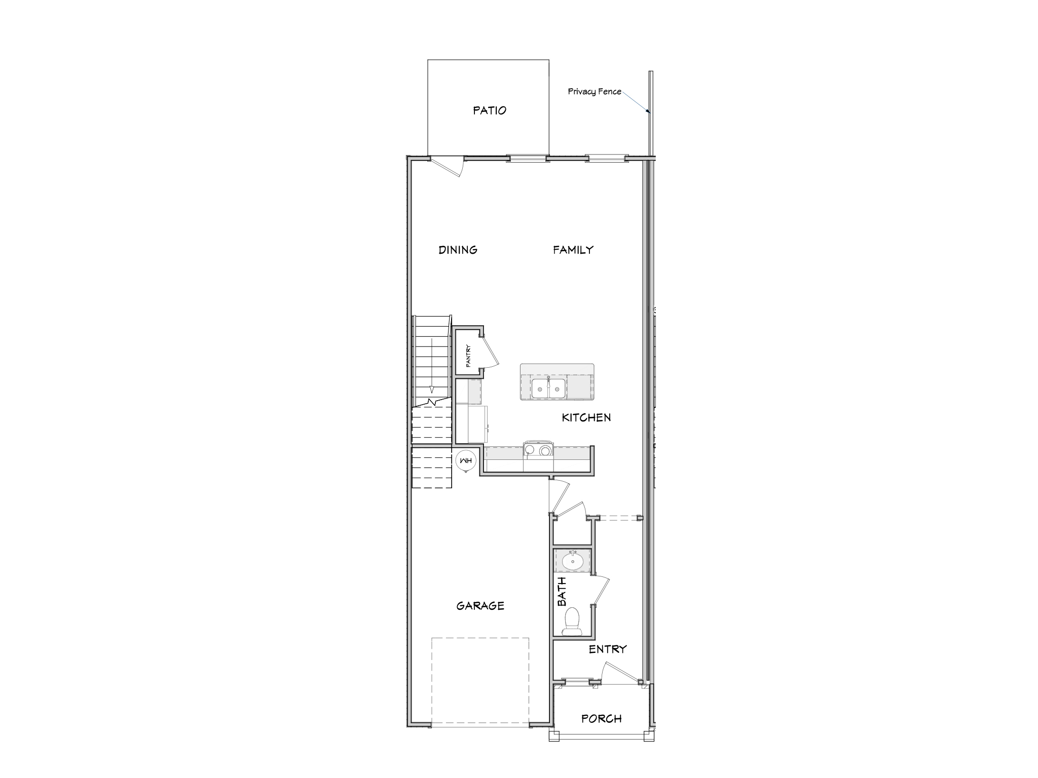
Main Level
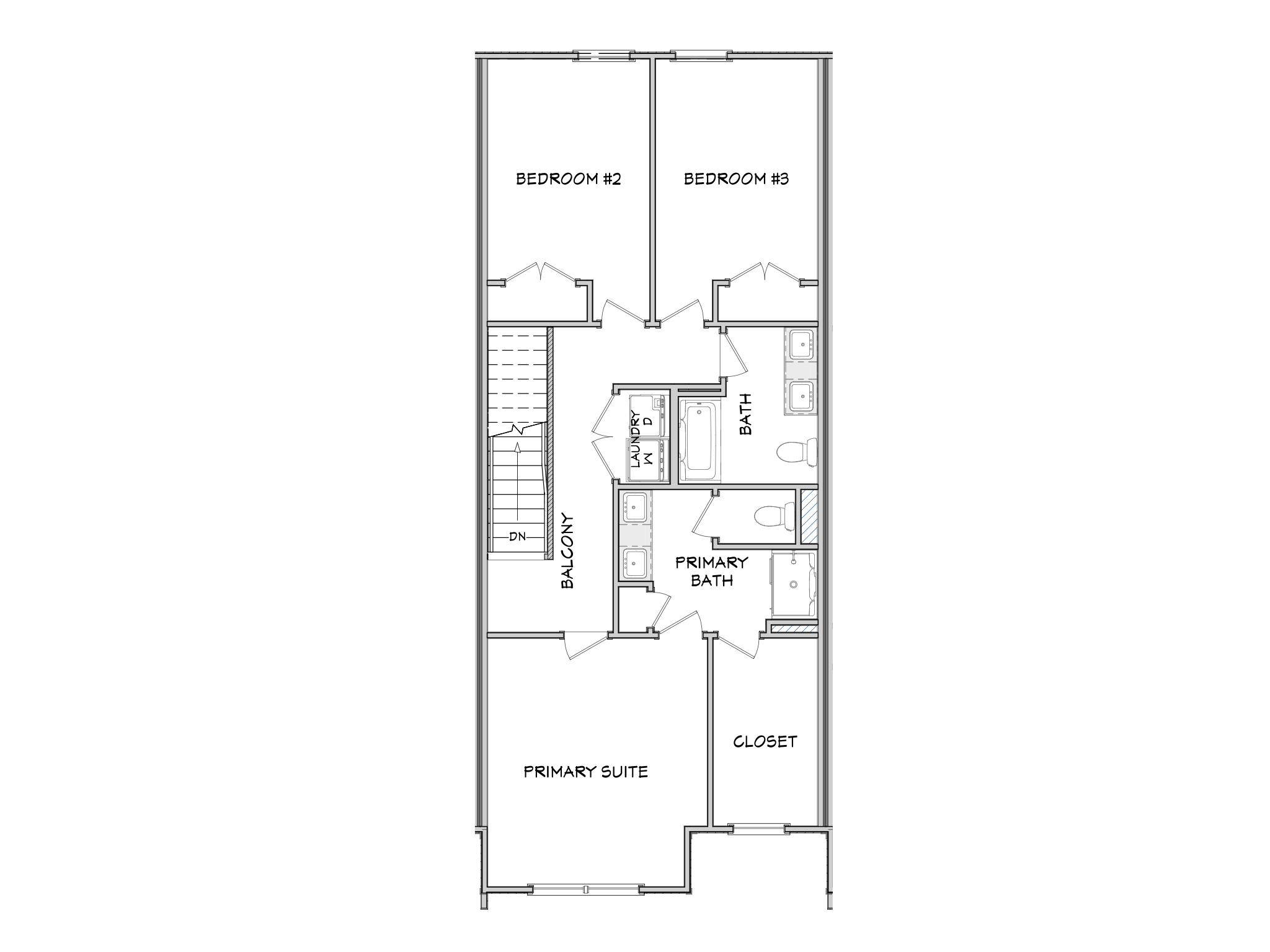
Upper Level