Filmore at Hemingway
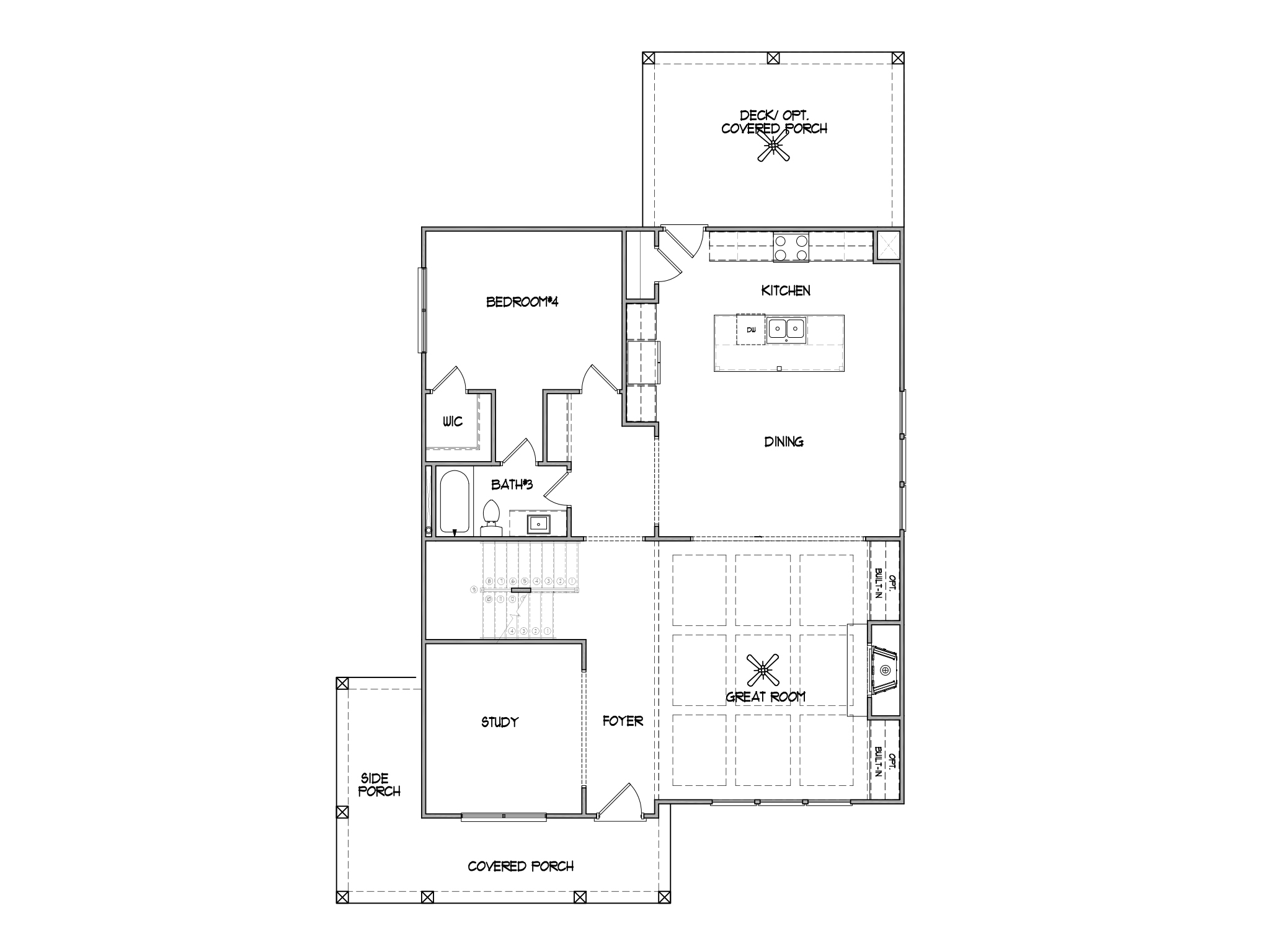
First Floor at Hemingway
Second Floor at Hemingway
Basement at Hemingway