Elevation B at Hemingway
Elevation A at Hemingway
Elevation C at Hemingway
Elevation D
Elevation A at Kennedy Preserve
Elevation B at Kennedy Preserve
Elevation C at Kennedy Preserve
Elevation D at Kennedy Preserve
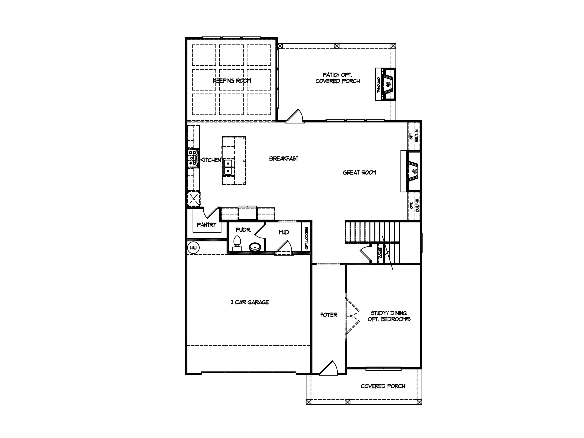
First Floor
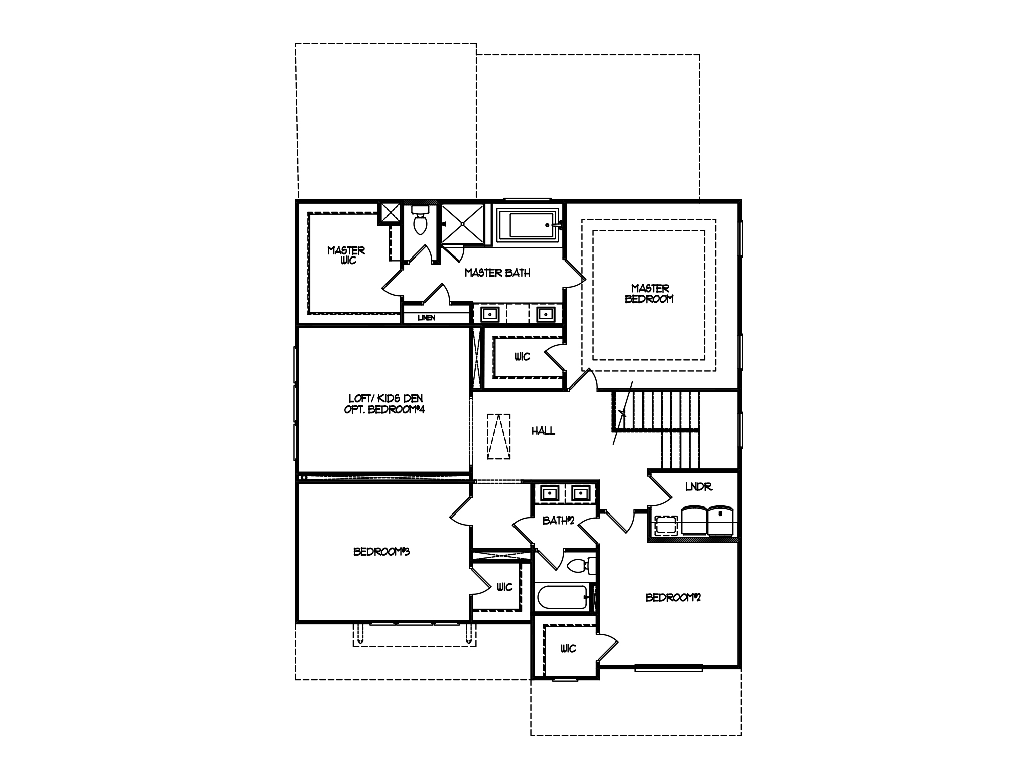
Second Floor
First Floor at Hemingway
Optional 4th Bedroom
Optional Bedroom
Optional Fireplace in Keeping Room
Optional Super Shower
Optional Fireplace in Keeping Room at Hemingway