B3
C3
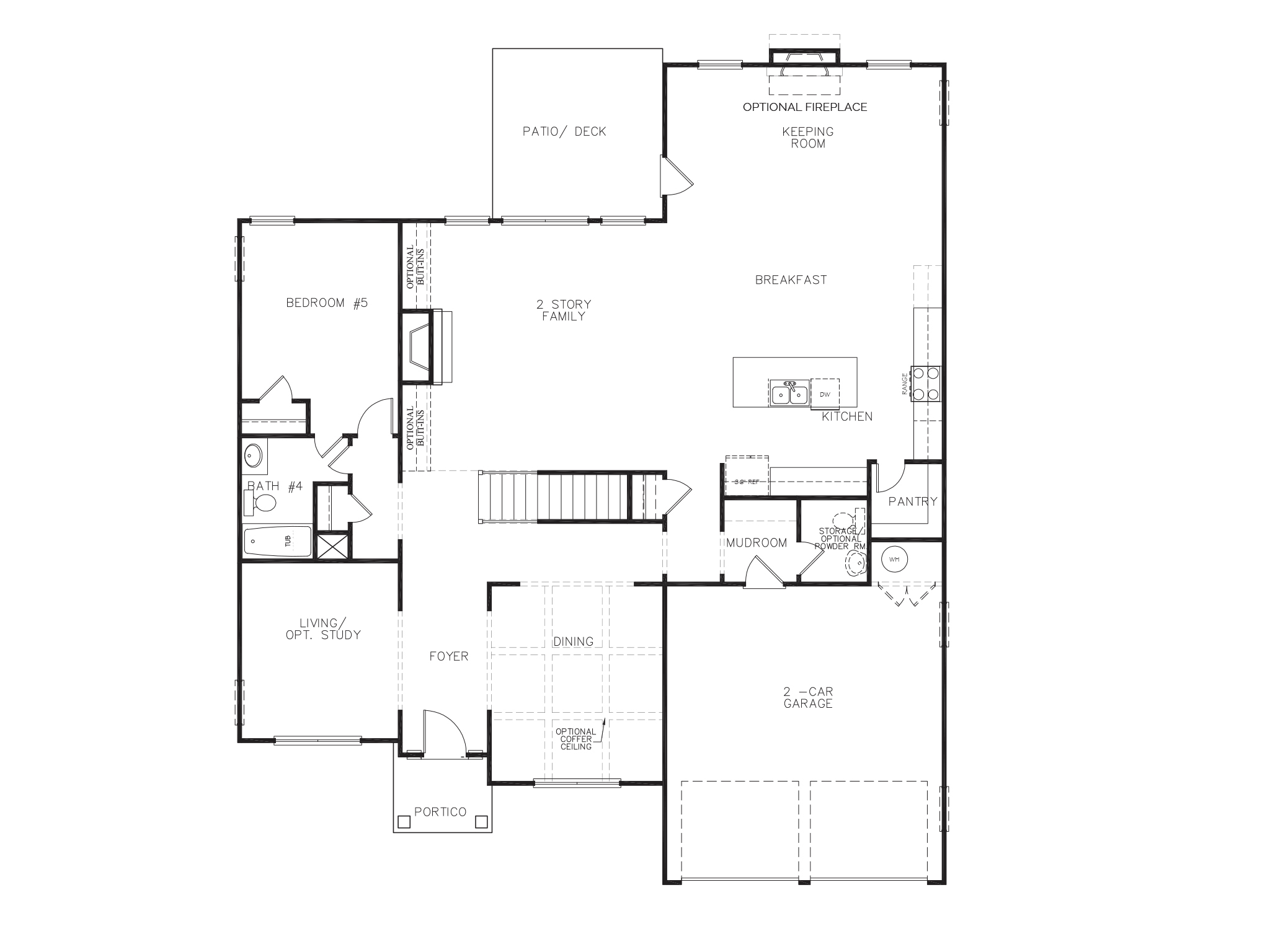
First Floor
Second Floor
Optional 3 Car Bolt On
Optional Media Room
Optional Side Entry
Optional Bath