B3 at Ruby Creek Estates
First Floor at Ruby Creek Estates
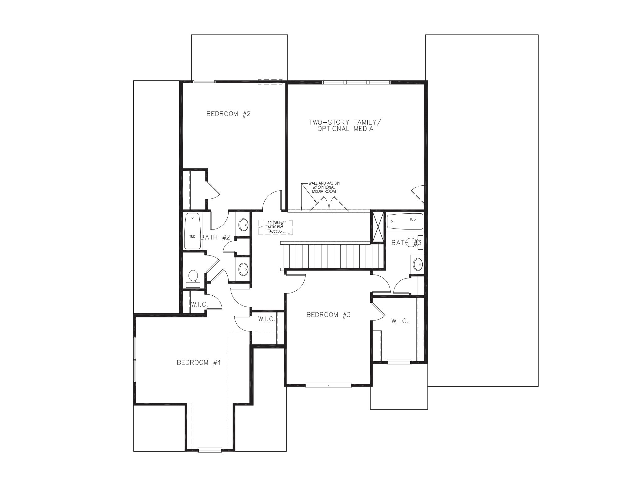
Second Floor at Ruby Creek Estates
Optional Side Entry at Ruby Creek Estates
Optional 3rd Car at Ruby Creek Estates
Optional Media Room at Ruby Creek Estates