B3
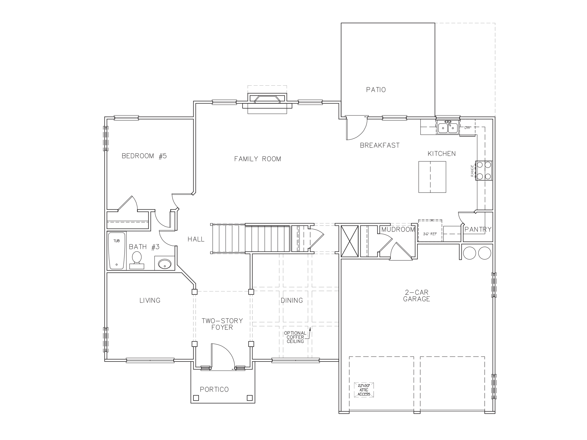
First Floor
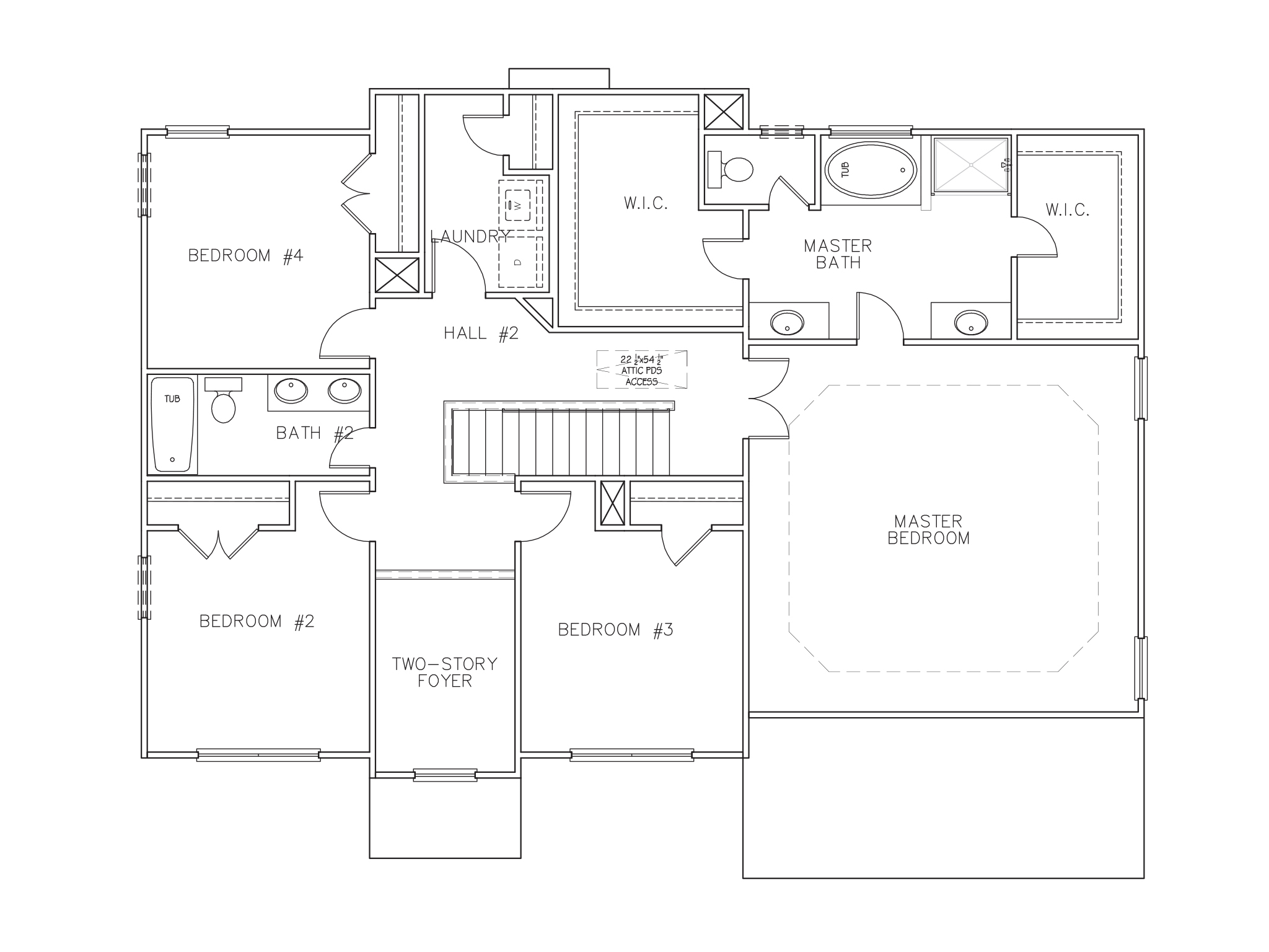
Second Floor
Optional 3 Car Garage
Optional Keeping Room
Optional Side Entry