Elevation A at Park Ridge
Elevation B at Park Ridge
Elevation C at Park Ridge
Elevation A 3 Car at Park Ridge
Elevation B 3 Car at Park Ridge
Elevation C 3 Car at Park Ridge
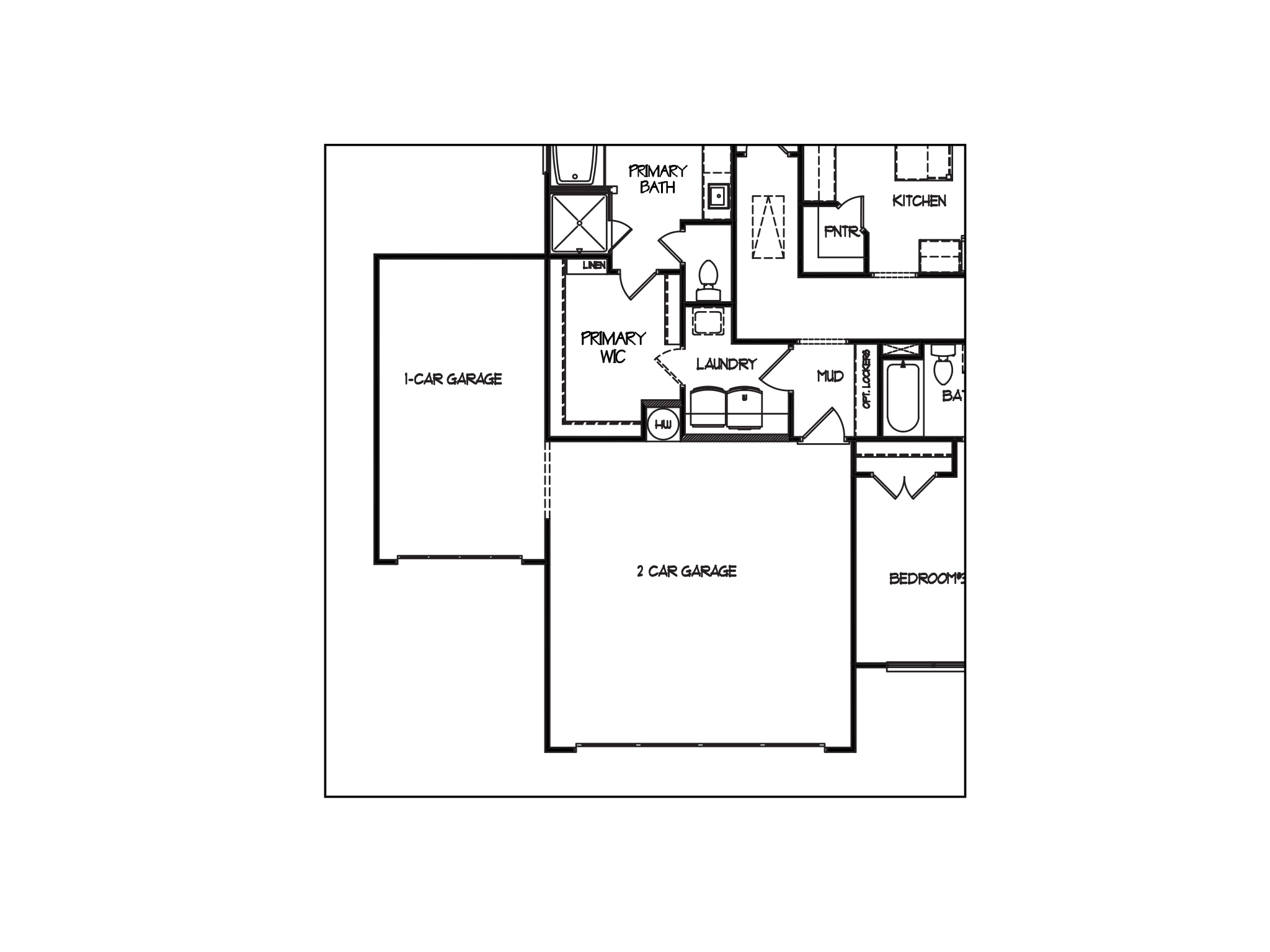
Main Level at Park Ridge
Optional Luxury Kitchen at Park Ridge
Optional Super Shower at Park Ridge
Optional Shower in Bath #2 at Park Ridge
Optional 3rd Car at Park Ridge