Elevation FH
Elevation B-MC
First Floor
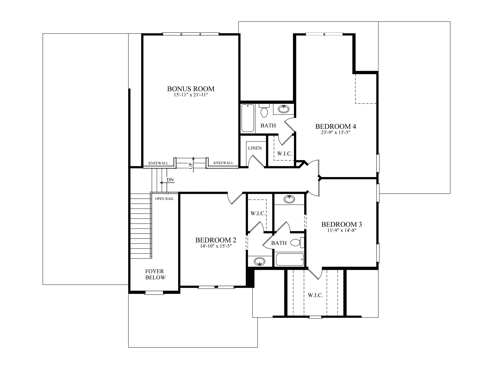
Second Floor
First Floor at Arden on Lanier
Second Floor at Arden on Lanier
Optional Ensuite