Elevation A at Sutton's Landing
Elevation B at Sutton's Landing
Elevation C at Sutton's Landing
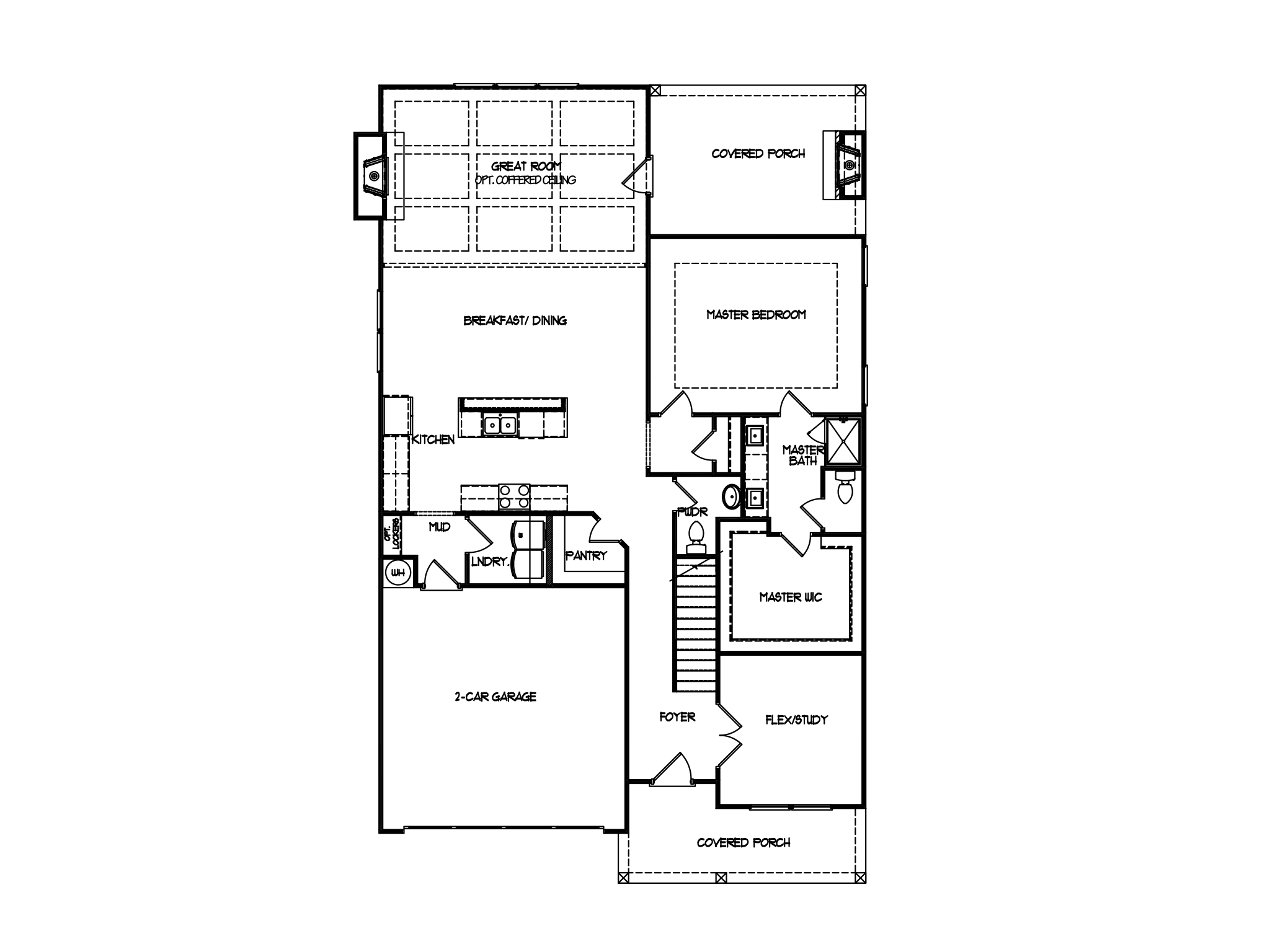
First Floor at Sutton's Landing
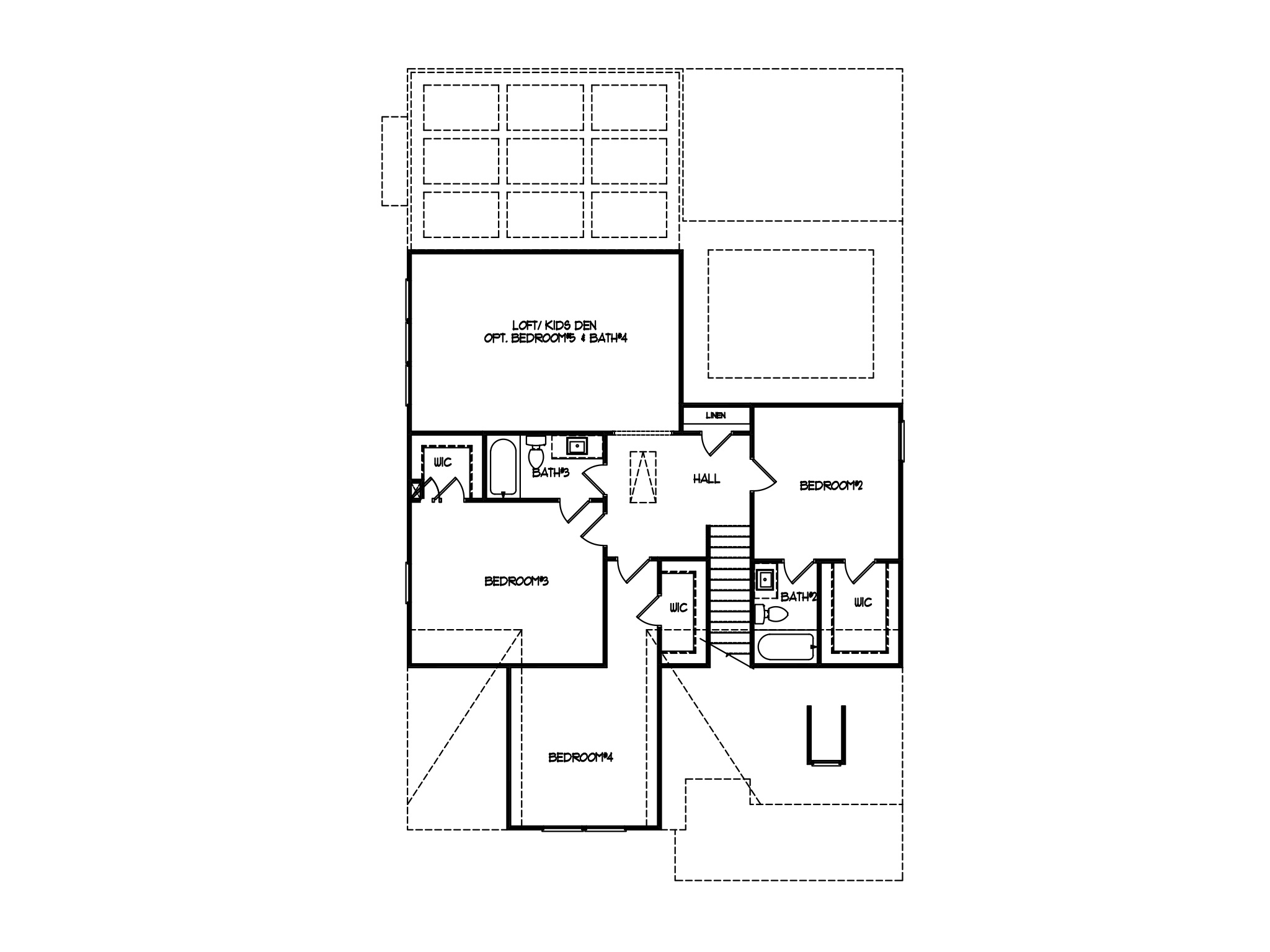
Second Floor at Sutton's Landing
Optional Garden Tub at Sutton's Landing
Optional Super Shower at Sutton's Landing
Optional Bed & Bath at Sutton's Landing
Optional Fireplace at Sutton's Landing