Elevation B at Livingstone Park
Elevation A at Livingstone Park
Elevation C at Livingstone Park
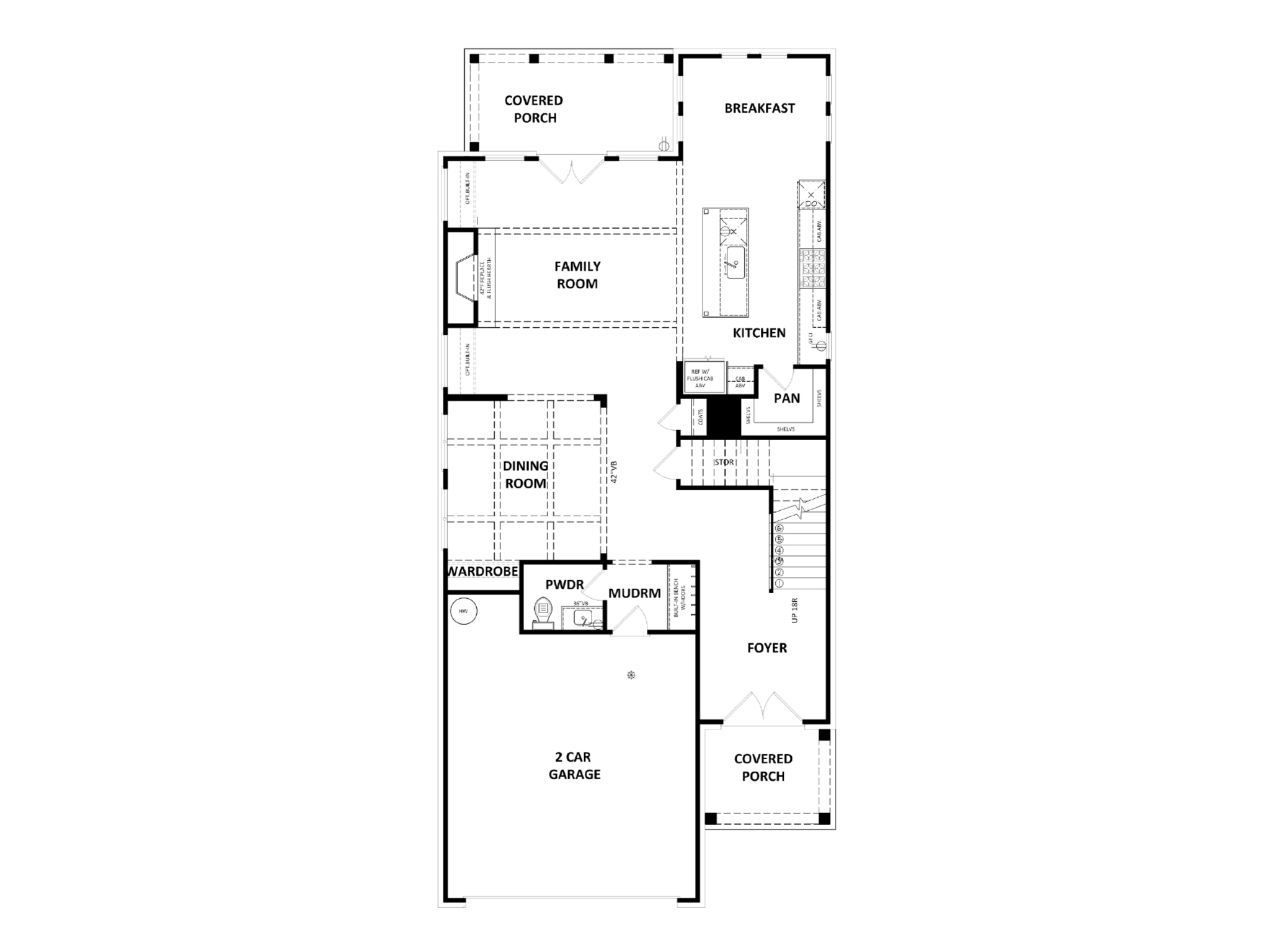
First Floor at Livingstone Park
Second Floor at Livingstone Park
Optional Master Covered Porch on Second Floor