5662 Evelyn Lane, Flowery Branch, GA, 30542

Save
Ask
Tour
Hide
Share
$499,900
64 Days On Site

5662 Evelyn Lane
Flowery Branch, GA 30542

For Sale|Single Family Residence|Active
4
Beds
3
Total Baths
2
Full Baths
1
Partial Bath
2,633
SqFt
$190
/SqFt
2026
Built
Subdivision:
Hemingway
County:
Hall
Listing Courtesy Of: TAMRA WADE of RE/MAX Tru Broker: 770-502-6232 Prefer Ph#:listings@TamraWadeRealEstate.com

Due to the health concerns created by Coronavirus we are offering personal 1-1 online video walkthough tours where possible.

Call Now: 770.502.6230
Is this the listing for you? We can help make it yours.
770.502.6230
5662 Evelyn Lane5662 Evelyn Lane5662 Evelyn Lane5662 Evelyn Lane
Save
Ask
Tour
Hide
Share

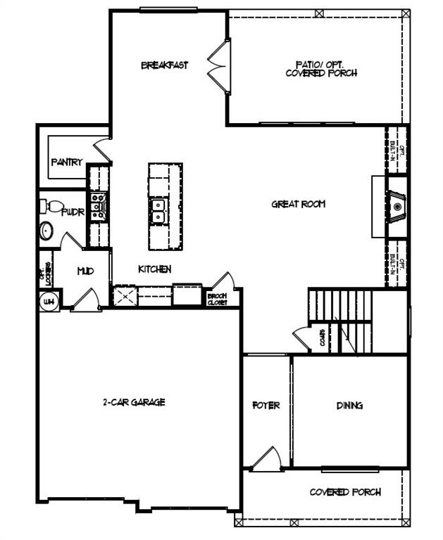
The Miller Plan built by Walker Anderson Homes is a Beautiful Home on a Quiet Culdesac Street in the Charming Hemingway Community in Downtown Flowery Branch and within walking distance to Lake Lanier's Marinas, Restaurants, and Recreational Offerings. The Home features a Luxurious Brick & Siding Exterior with Covered Rear Porch and Expansive 9-Foot Ceilings on both the Main and Upper Levels. When you enter through the front door from the Covered Front Porch, you are greeted by a Formal Dining Room which can also be used as an office. The Kitchen is open to the Family Room & Breakfast Room, has Painted Cabinets with Soft-Close Cabinet Doors & Drawers and includes a 36" Gas Cooktop with Cabinet Vent Hood, Wall Oven, Wall Microwave, all complimented by a Large Island. The Primary Bedroom Suite Upstairs is Spacious and complete with a Tray Ceiling, Two Walk-In Closets, Double Vanity, and a Large Shower with Separate Soaking Tub. A Super Shower Option is also available. There are Three Additional Bedrooms Upstairs, each with a Walk-In Closet, and and an additional Full Bath. Home is under construction with a projected completion in Summer of 2026. Ask about your Incentives with use of preferred lender. *Secondary Photos are Stock Photos

Save
Ask
Tour
Hide
Share
Listing Snapshot
Price 
$499,900
Days On Site 
64 Days
Bedrooms 
4
Inside Area (SqFt) 
2,633 sqft
Total Baths 
3
Full Baths 
2
Partial Baths 
1
Lot Size 
0.165 Acres
Year Built 
2026
MLS® Number 
7724084
Status 
Active
Property Tax 
N/A
HOA/Condo/Coop Fees 
$65 monthly
Sq Ft Source 
Builder
Friends & Family
Recent Activity
2 months agoListing first seen on site
2 months agoListing updated with changes from the MLS®
General Features
Acres 
0.165
Foundation 
Slab
Garage 
Yes
Garage Spaces 
2
Home Warranty 
Yes
Land Lease 
No
Levels 
Two
Number Of Stories 
2
Parking 
GarageGarage Door OpenerGarage Faces FrontKitchen LevelStorageDriveway
Property Condition 
New Construction
Property Sub Type 
Single Family Residence
Security 
Carbon Monoxide Detector(s)Smoke Detector(s)
Sewer 
Public Sewer
SqFt Above 
2633
SqFt Total 
2633
Style 
CraftsmanFarmhouseTraditional
Utilities 
Cable AvailableElectricity AvailableNatural Gas AvailablePhone AvailableUnderground UtilitiesWater Available
Water Source 
Public
Interior Features
Appliances 
DishwasherDisposalElectric OvenGas CooktopGas Water HeaterMicrowaveRange Hood
Basement 
None
Cooling 
Ceiling Fan(s)Central AirElectric
Electric 
220 Volts in Laundry
Fireplace 
Yes
Fireplace Features 
Factory BuiltFamily RoomGas Log
Fireplaces 
1
Flooring 
CarpetLaminateTile
Heating 
Natural Gas
Interior 
Breakfast BarEat-in KitchenPantryKitchen IslandDouble VanityEntrance FoyerHigh Speed InternetHis and Hers ClosetsTray Ceiling(s)Walk-In Closet(s)
Laundry Features 
Laundry RoomUpper Level
Window Features 
Double Pane WindowsInsulated Windows
Save
Ask
Tour
Hide
Share
Exterior Features
Construction Details 
Cement SidingFrame
Exterior 
Private EntrancePrivate YardRain GuttersStorage
Fencing 
None
Lot Features 
Back YardFront YardLandscapedLevel
Other Structures 
None
Patio And Porch 
CoveredFront PorchRear Porch
Pool Features 
None
Road Frontage 
County Road
Roof 
CompositionShingle
Spa Features 
None
View 
Trees/Woods
Waterfront Features 
Creek
Waterview 
Trees/Woods
Windows/Doors 
Double Pane WindowsInsulated Windows
Community Features
Association Dues 
780
Community Features 
ParkSidewalksStreet Lights
Financing Terms Available 
1031 ExchangeCashConventionalFHAVA Loan
HOA Fee Frequency 
Annually
Horse Property 
None
Roads 
Paved
Schools
School District
Unknown
Elementary School
Flowery Branch
Middle School
West Hall
High School
West Hall
Listing Courtesy Of: TAMRA WADE of RE/MAX Tru Broker: 770-502-6232 Prefer Ph#:listings@TamraWadeRealEstate.com

Listings identified with the FMLS IDX logo come from FMLS and are held by brokerage firms other than the owner of this website and the listing brokerage is identified in any listing details. Information is deemed reliable but is not guaranteed. If you believe any FMLS listing contains material that infringes your copyrighted work, please click here to review our DMCA policy and learn how to submit a takedown request.



© 2017-2026 First Multiple Listing Service, Inc.

Neighborhood & Commute
Source: Walkscore
Disclosure: Community information and market data powered by Constellation Data Labs. Information is deemed reliable but not guaranteed.
Save
Ask
Tour
Hide
Share