Due to the health concerns created by Coronavirus we are offering personal 1-1 online video walkthough tours where possible.




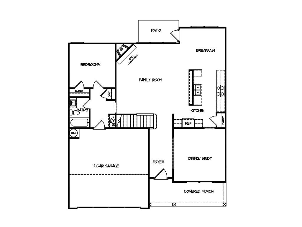
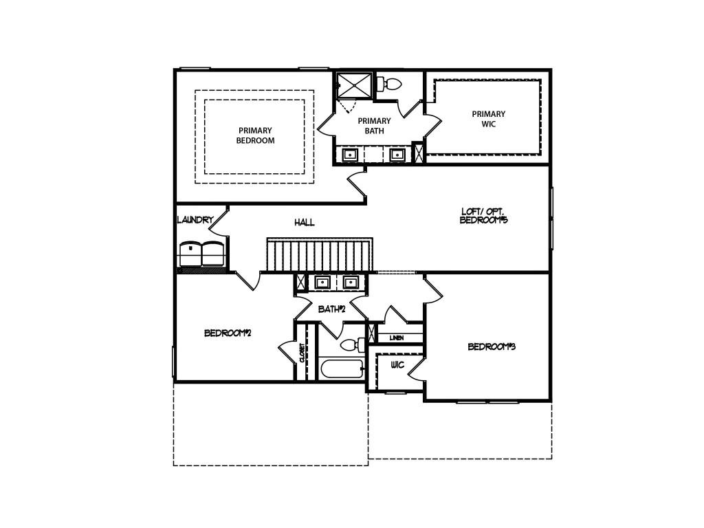
The Farmington Plan built by My Home Communities. Come enjoy country living in this quiet GATED community with easy access to HWY316 and only minutes from Athens and the University of Georgia. Stunning two story 4bedroom 3 bath home. The main floor features a formal dining room with elegant judges paneling, LVP flooring and a guest bedroom with a full bath. The kitchen boasts 36"cabinets, large pantry, granite countertops, stainless steel appliances and a large island with open view to the family room. Upstairs you will find the owner's suite complete with elegant trey ceilings and a large walk-in closet. The owner's bathroom showcases double vanity with granite countertops, plenty of storage and tile shower with soaking tub. Spacious secondary bedrooms, conveniently located laundry room and LOFT. Enjoy evenings on your covered patio overlooking your private backyard. Approximate completion NOV/DEC 2025. AMENITIES include a pool, cabana and pickleball courts. *Matterport tour is not of the actual property but is an example of the floor plan* 100% USDA Financing available. *Secondary photos are file photos* Contact us TODAY to learn about our Rates Starting as Low as 1.99%* with use of Seller's Preferred Lender!
| 3 weeks ago | Price changed to $415,900 | |
| 3 weeks ago | Listing updated with changes from the MLS® | |
| 2 months ago | Status changed to Active | |
| 2 months ago | Listing first seen on site |
Did you know? You can invite friends and family to your search. They can join your search, rate and discuss listings with you.