Due to the health concerns created by Coronavirus we are offering personal 1-1 online video walkthough tours where possible.




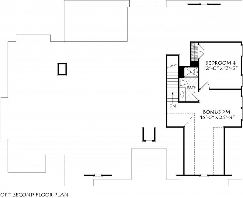
Adorable modern mountain cottage plan TO BE BUILT in the prestigious Georgian Highlands community on a beautiful 3-acre North Georgia property with gentle terrain and seasonal views. This new construction home for sale offers both privacy and convenience near Ellijay. This new construction will be built by Precision Custom Home Builders, a trusted North Georgia builder known for quality craftsmanship and thoughtful design. As a true custom builder, this builder provides the flexibility to modify the plan, adjust layouts, or personalize finishes to create a home tailored to your lifestyle. The exterior showcases classic brickwork, mountain-style gabled rooflines, and a welcoming covered porch with rustic timber columns. Exposed wood accents and decorative brackets highlight the peaks, while grouped windows fill the interiors with natural light. A side-entry garage preserves the clean, balanced curb appeal, creating a design that feels both timeless and inviting. Inside, a vaulted great room with beamed ceiling and fireplace anchors the open floor plan, seamlessly connecting to the kitchen and dining areas. The kitchen includes a large island, walk-in pantry, and generous cabinetry. A flex room off the foyer can serve as a study, office, or dining space. The owner’s suite features a beamed ceiling, dual vanities, and a walk-in closet with direct access to the laundry. Two additional bedrooms share a compartmentalized bath for comfort and privacy. Covered porches front and back extend the living space outdoors, while an optional upstairs bonus with full bath provides space for a fourth bedroom, office, or guest retreat. The 3-acre homesite rises gently from the road, giving the property a natural sense of privacy as the terrain slopes upward. An old driveway has already been cut in, curving gracefully and widening as it approaches the homesite. It is currently walkable and provides a clear approach, with only light maintenance and a few small trees to clear before it can be driven. In summer, the forest canopy surrounds the land in green, while fall and winter open to seasonal mountain views. The setting feels private and serene, yet it’s only half a mile from the rear gate with quick access to Ellijay’s apple orchards, wineries, hiking trails, and the Blue Ridge Mountains. Georgian Highlands gated community delivers luxury mountain living along the Burnt Mountain Range. Wide paved roads meander through hardwood forest with a state park feel, and abundant wildlife adds to the setting. Rentals are not permitted, preserving the quiet residential character. HOA fees are reasonable, and the location is central—approximately 20–25 minutes to Jasper or Ellijay, and about an hour to the Atlanta perimeter. Nearby are apple orchards, wineries, U-Pick farms, mountain trails, and seasonal destinations like sunflower and pumpkin fields. Georgian Highlands offers one of the most desirable North Georgia mountain property settings, combining privacy, natural beauty, and easy access to local attractions. This is a preconstruction listing. Buyers may tailor the design before construction begins. Renderings are representative only. Staged interior images/renderings do not show actual furnishings, décor, or materials. If you love the finishes, ask about available options at your construction appointment. Terrain and satellite imagery are for reference only and not a survey. Exterior home design, location, and vista pruning must be approved by the HOA Architectural Committee. Build time is projected at approximately 12 months after contract closing.
| 2 months ago | Status changed to Active | |
| 2 months ago | Listing updated with changes from the MLS® | |
| 2 months ago | Listing first seen on site |
Did you know? You can invite friends and family to your search. They can join your search, rate and discuss listings with you.